Москва

Зона Отдыха ОСКАР

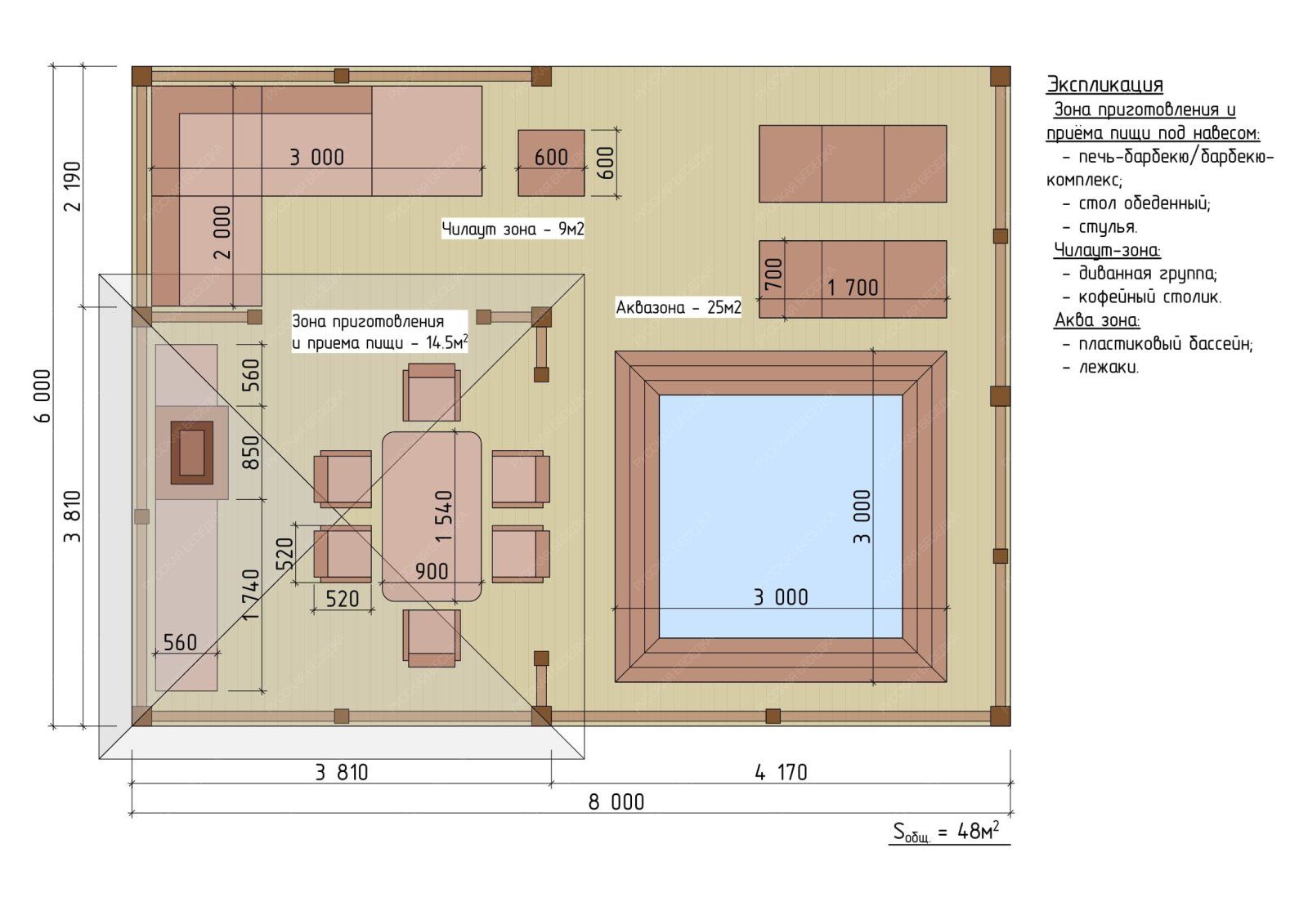
  • Размер: 8 х 6 м
  • Площадь: 48 м²
Цена за комплект
827 470 р
877 470 р
i Стоимость доставки и установки

Стоимость доставки и установки рассчитывается индивидуально.

Проживание бригады, в период строительства, обеспечивается силами нашей Компании (Подрядчика) и включено в стоимость.

Уборка строительного мусора после монтажа в мешки — включена в стоимость.

Понятно
Характеристики:
Срок производства:
от 30 дней
Вместимость:
в среднем 12 человек
Цвет:
большая цветовая палитра
Форма:
прямоугольная
Наполнение:
печь и мебель заказывается отдельно

Комплектация:

Зона отдыха (полный комплект для сборки)

Гидроизоляция фундамента (рубероид или аналогичный материал)

Подарите своему загородному участку уют и комфорт с нашими зонами отдыха. Изготовленные из качественных материалов, они обеспечат долговечность и минимальные требования к уходу. Мы придерживаемся индивидуального подхода, создавая проекты, которые идеально соответствуют вашим уникальным пожеланиям и требованиям.

Отличительной особенностью зон отдыха является их многофункциональность: вы можете готовить на просторной веранде, организовать обеденную зону под навесом или в закрытой части, расположить летний кинотеатр под открытым небом, интегрировать в конструктив террасы бассейн или детскую площадку.

Наслаждайтесь расслабляющими моментами в окружении стильного и функционального дизайна, зная, что каждая деталь вашей зоны отдыха продумана до мелочей для вашего максимального удовольствия.

Подробные характеристики:
В стоимость входит
Деревянный конструктов согласно планировки и визуализациям
Наполнение зоны отдыха
Формируется клиентом самостоятельно, возможно учитывая предложенную планировку
Форма и размеры
Могут корректироваться клиентом, исходя из возможностей места для установки
Материал

Конструкция изготовлена из хвойных пород древесины (ель, сосна)

Сорт по лицевой стороне: АВ

При использовании клееного бруса, допускается его растрескивание по волокнам толщиной до 3 мм, не влияющее на несущую способность балки, а так же возможно появление микротрещин по склейке, глубиной до 2-3 мм, которые устраняются с помощью герметизирующих средств и последующей шлифовкой.

Допускается заделка лицевых поверхностей клееного бруса лодочками, планками, пробками на клею, а так же специальная шпаклевка по дереву.

Крепеж

В крепеже не используем черных саморезов, только желтопассированные

Крепеж не является сборно – разборным.

Требования к участку

Площадка должна быть максимально ровная, избавлена от растительности (деревья, кусты, высокая трава), должна располагаться поблизости от инженерных коммуникаций.

В случае перепада участка – просьба сообщить об этом.

Фундамент

Варианты:

Винтовые сваи, 89×2500 мм

Бетонное основание (ленточный или монолитная плита)

В случае установки свайного фундамента силами Подрядчика, непредвиденные расходы, связанные со скрытыми сложностями установки (особенностями грунта, непредвиденные повреждение коммуникаций) оплачиваются Заказчиком на основании дополнительного соглашения к Договору.

Генератор

На участке необходимо электричество, для производства работ по строительству. В случае его отсутствия необходимо об этом сообщить на стадии оформления заказа. В этом случае привозится генератор.

Уборка мусора

Осуществляется сбор мусора возникшего при монтаже конструкции в мешки, без вывоза с объекта.

Договор

Заключается при приезде на участок. Полный пакет документов

Гарантия

Срок службы: 15 лет

Гарантия: 12 месяцев

Срок претензионного обслуживания - 1 год

Страна изготовитель

Россия, «Русская Беседка»

Выберете категорию:
Пропитка «Здоровый дом»

Деревозащитная и декоративная пропитка, которая подчеркивает естественную красоту материала и натуральную структуру дерева. Защищает от влаги, ультрафиолетовых лучей и других атмосферных воздействий. Препятствует гниению, образованию плесени. Обеспечивает надежную защиту деревянной поверхности от насекомых-вредителей.

Срок службы 3-5 лет.

Пропитка «Tikkurila Vinha»

Tikkurila Vinha кроющий антисептик с большой цветовой палитрой, который формирует на поверхности материала защитное покрытие, которое замедляет процессы разрушения древесины. Состав краски включает в себя водоотталкивающие компоненты и позволяет не только сохранить материал и продлить срок его службы, но и существенно увеличить эстетическую привлекательность конструкции

Срок службы 7-10 лет.

Гибкая черепица «Финская соната»

Гибкая черепица «Финская Соната» – это надежный и современный кровельный материал. Идеально подходит для практичных людей, которым, прежде всего, важна экономичность.

Гибкая черепица «Кантри»

Кантри — двухслойная черепица, доступная каждому! Имея большой выбор цветов, она органично дополнит стиль любого дома, а фактурный рельеф придаст кровле солидность и индивидуальность.

Фальцевая кровля

Фальцевая кровля - это металлическое кровельное покрытие. Обладает максимальной герметичностью, водонепроницаемостью и продолжительным сроком эксплуатации. Эстетично смотрится на любой конструкции и имеет широкую цветовую гамму.

Металлочерепица

Металлочерепица ― один из наиболее современных и востребованных материалов для облицовки кровли. Представляет собой рельефные листы из оцинкованной стали с полимерным покрытием. Металлочерепица хорошо переносит воздействие высоких и низких температур. Она не теряет эксплуатационных качеств, не покрывается трещинами, не деформируется. В процессе эксплуатации металлочерепица не выделяет токсичных соединений, безопасна в использовании.

Палитра водосточных систем

Водосточная система служит для сбора воды с кровли и отведения её от фасада и фундамента постройки, защищая тем самым её от негативного воздействия атмосферных осадков. Водосточная система подходит практически к любому типу кровли, не боится снега, града и сильных дождевых нагрузок, обладает прекрасной устойчивостью к механическим воздействиям. Элементы водосточной системы жёстко фиксируются между собой, что обеспечивает её целостность и сохранность на протяжении всего срока эксплуатации.

Палитра древесно-полимерного композита (напольное покрытие)

ДПК — это древесно-полимерный композит, современный материал, предназначенный для наружного применения в любых климатических условиях с самыми интенсивными нагрузками. Не подвергается короблению и растрескиванию. В процессе производства волокна древесины смешиваются с полиэтиленом низкого давления, добавками и красителями, что позволяет защитить их от воздействия бактерий и грибков, сохранить привлекательный вид изделия в течение длительного срока эксплуатации. При этом покрытию не нужны ни лак, ни специальная пропитка, ни другие защитные и декоративные средства.

Наименование Цена
Зона Отдыха ОСКАР (полный комплект для сборки) 827 470 р
Доставка и установка цена по запросу
Установка барбекю цена по запросу
Выгрузка и занос к месту установки (в пределах 15 м) Бесплатно в цену входят
Уборка мусора после монтажа (без вывоза) Бесплатно в цену входят
Разработка 3D-модели (после заключения договора) Бесплатно в цену входят
Проживание бригады в период строительства Бесплатно в цену входят
Заказать звонок
Каталог товаров
Меню
Заказать звонок WhatsApp Telegram
Подпишитесь на наш канал — у нас интересно! Подпишитесь на наш канал — у нас интересно!